Casa Villa Araçá

Porto Belo
Ano: 2024
Área: 403 m²

A Villa Araçá, localizada no Porto Belo Golf Resort, no litoral norte de Santa Catarina, é um refúgio projetado para celebrar momentos de convivência e bem-estar em harmonia com a natureza. Inspirada pelas praias de Porto Belo e pela atmosfera sofisticada e descontraída do resort, a residência combina elementos contemporâneos com texturas naturais, criando um espaço acolhedor que privilegia o conforto e a integração.

Ao percorrer o caminho de entrada, marcado por pedras naturais, vegetação exuberante e um pergolado em madeira, o visitante é suavemente conduzido até o interior da casa. O percurso, desenhado com curvas que acompanham a arquitetura, oferece uma transição fluida, reforçando o sentimento de acolhimento e tranquilidade.

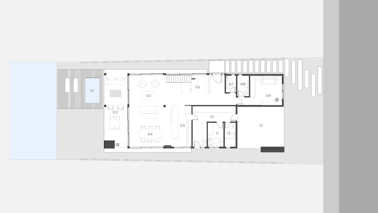
Na área social, a integração é protagonista: salas de estar, cozinha e espaço gourmet conectam-se em um layout contínuo que se estende até o jardim e a piscina. Portas amplas permitem a fusão entre o interior e o exterior, enquanto a vegetação que envolve a casa adentra os ambientes, ampliando a sensação de proximidade com a natureza.

O jogo de luz e sombra, promovido por elementos arquitetônicos como painéis de muxarabi e uma cobertura planejada, cria uma atmosfera dinâmica e envolvente. A iluminação natural é cuidadosamente trabalhada para valorizar o ritmo circadiano e enriquecer o espaço com texturas de luz ao longo do dia e das estações do ano.

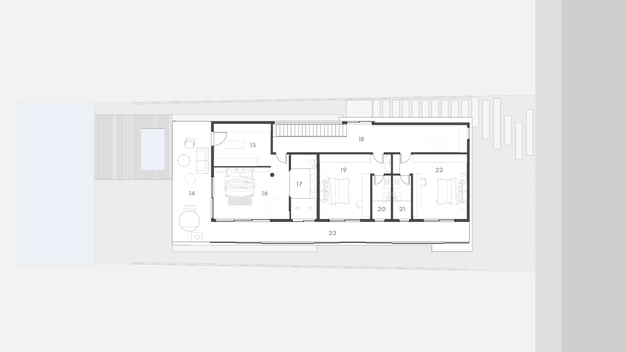
No pavimento superior, as suítes foram orientadas para o nascente, oferecendo vistas privilegiadas e aproveitando a luz suave da manhã. A suíte master, com varanda privativa voltada para o campo de golfe e as montanhas, integra um ofurô para momentos de relaxamento, além de um banheiro conceito spa e um closet espaçoso, criando um verdadeiro santuário de descanso e contemplação.

Com base nos princípios do design biofílico, da neuroarquitetura e da arquitetura bioclimática, a Villa Araçá foi concebida para oferecer uma experiência sensorial única. A combinação de materiais naturais, como pedra e madeira, com soluções sustentáveis reforça o compromisso com o bem-estar dos moradores, conectando-os à natureza e proporcionando conforto, harmonia e um estilo de vida elevado.

Anterior
Anterior

Casa Los Suspiros

Próximo
Próximo

Casa La Pedrera