
Casa la Florida
Gravataí
Ano: 2024
Área: 533 m²
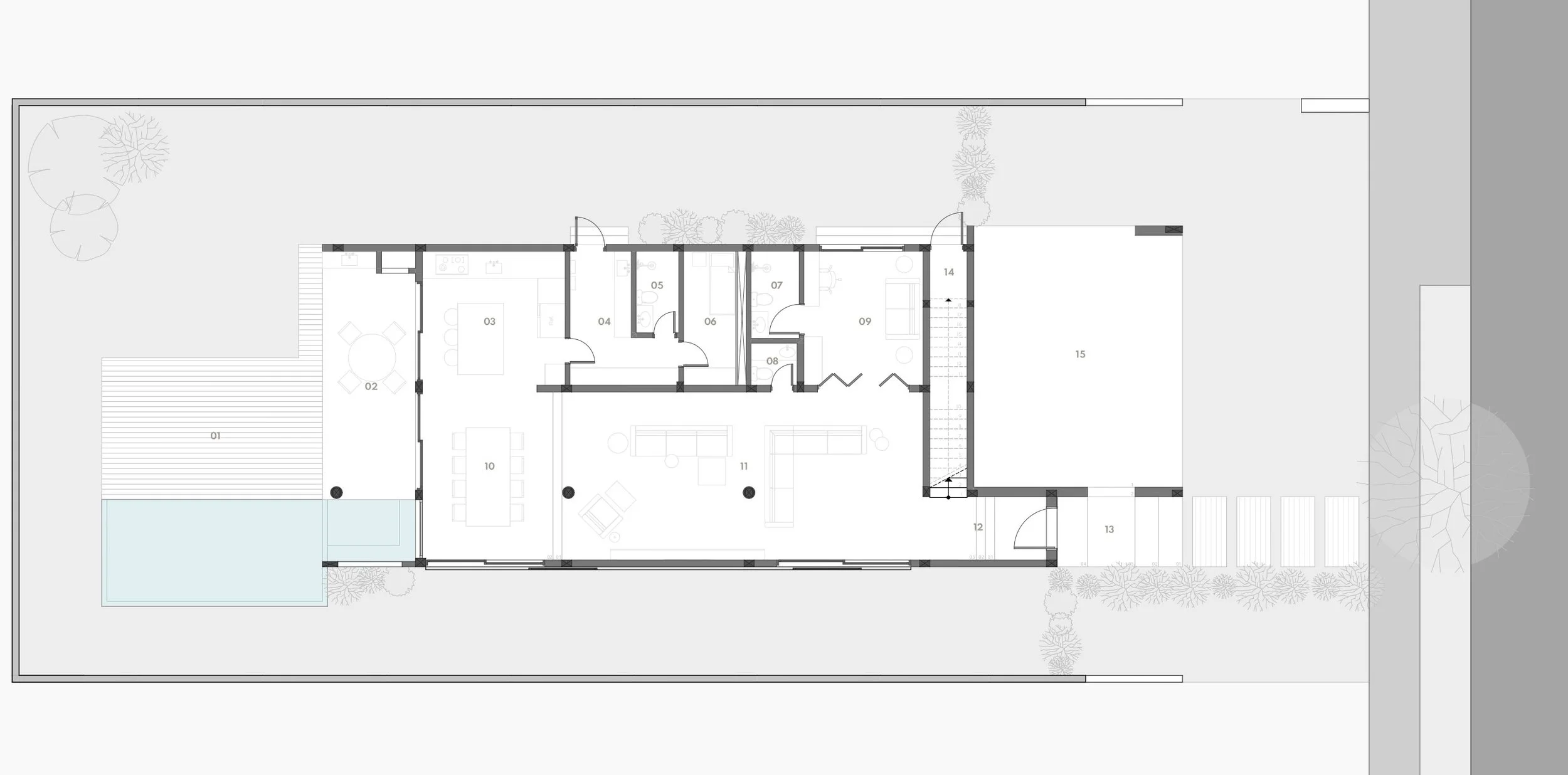
A Casa La Florida é um projeto que equilibra sofisticação, funcionalidade e conexão com a natureza. Integrada a seu ambiente externo por amplas aberturas e uma arquitetura pensada para o bem-estar, a residência reflete os princípios do Design Biofílico e da neuroarquitetura. O uso de materiais naturais, como madeira e pedra, tanto no piso quanto nas esquadrias, cria uma atmosfera de acolhimento, enquanto as soluções sustentáveis, como cisterna para reaproveitamento de água e esperas para placas fotovoltaicas, demonstram o compromisso com a eficiência energética.
No pavimento íntimo, as suítes se abrem para uma varanda com floreiras autoirrigáveis, promovendo uma experiência sensorial e de contemplação da natureza. A suíte master se destaca pelo amplo espaço e um banheiro conceito spa, que oferece um verdadeiro refúgio para relaxamento. A escada com iluminação zenital, os ambientes integrados, e a flexibilidade na entrada de luz natural, regulada por painéis móveis, são detalhes que refletem o cuidado com o conforto e a harmonia do espaço.
A Casa La Florida, com sua combinação de materiais nobres e soluções tecnológicas, convida à tranquilidade e ao bem-estar, unindo o interior ao exterior de forma fluida e natural, promovendo um estilo de vida mais saudável e conectado ao ambiente.





